
地区工商联合会' by chartier-corbasson architectes, 法国, 亚眠
image r.meffre and y.marchand
all images courtest of chartier-corbasson architectes
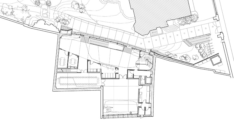
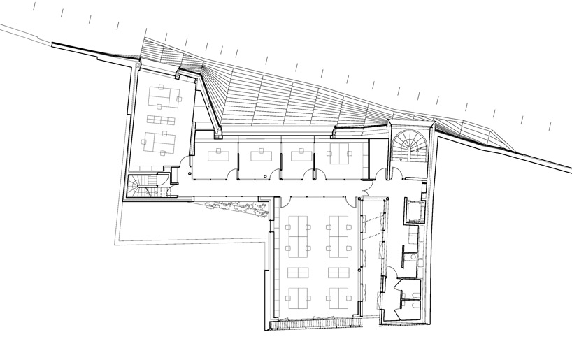
法国公司chartier-corbasson architectes最近刚完成了法国亚眠bouctot-vagniez镇市政厅扩建项目。这个加建项目容纳了“地方工商联合会”,它坐落在一个绿色的基座上,这个基座将就建筑、新建筑和旁边的花园连接在一起。这两座主要建筑体量由一个中庭连接,将光线和自然通风引入室内。南立面与街道相连的部分安装了一个双层金属网屏障,既能促进空气流通又阻隔了太阳光直射。建筑师利用金属网印刷技术创造出遮阳板纹理,阻隔某些方向的强烈日晒。绿色植物墙吞没了整个南立面,同时在不同层高上还开了许多全景窗。

朝向原有建筑的南立面
image r.meffre and y.marchand

沿南立面的道路
image r.meffre and y.marchand

(左) 从中庭往北看
(右) 从中庭往南看
images r.meffre and y.marchand

临街立面
image r.meffre and y.marchand

室内大厅
image r.meffre and y.marchand

地下报告厅
image r.meffre and y.marchand

平面图 / level 0

平面图 / level 1

剖面图
项目信息:
业主: crci de picardie
建筑设计: chartier-corbasson architectes
助理: iida tulkki, gabriel gutierrez
工程: betom
heq 工程: cap terre
声学: jplamoureux
舞台设计: ducks scéno
立面: van santen et associés
功能: 办公楼, 会议室, 接待室, 189 座报告厅
金属网面积: 1800 m2
预算: 5,600,000 €