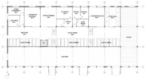
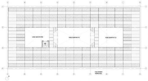
法国SOA及Holdup两家设计事务所联手设计了一个文化与农业结合的项目,音乐、教育、艺术活动在城市垂直农场的自然花卉中展开。项目位于Neil军营原址内,一层包括展览空间、剧场、画廊服务区,其上是叠加的轻质钢模块结构,容纳了”盘桓“在项目上方的种植文化。



建筑自身变成教育元素,吸引访客观看食物生产的各个环节以及从种子开始的整个生命周期。随着就业机会以及生物智能种植方法的增多,项目试图为未来提供一个示例,证明绿色能源制造能够与人们的社会需求并存。系统具有良好适应能力,设置了高效水利用的循环流程,充足有效的太阳能能源,以及可持续的食物生产方法,极大程度降低了运输需要和消耗。





