
建筑设计:Ayrat Khusnutdinov & Zhang Liheng
项目地址:西班牙 塞维尔
英文名称:Seville 24/7 Center
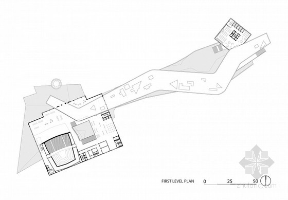
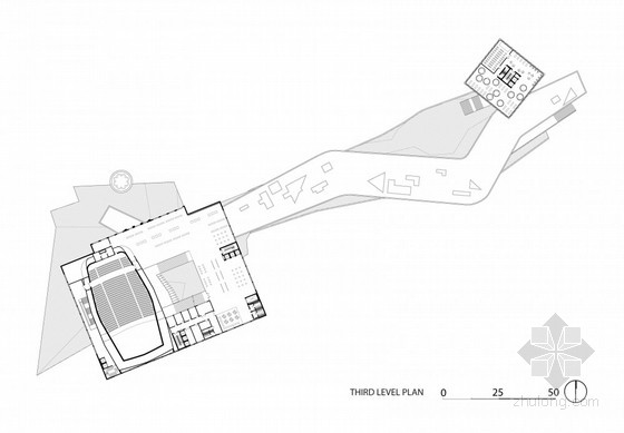
这是由Ayrat Khusnutdinov 和 Zhang Liheng设计的塞维尔24/7中心方案,在其中引入了西班牙传统的街道生活。这座建筑将会创造出一个躲避安达卢西亚酷热阳光的空间,让街道生活延长到每天24小时,每周7天。
这座建筑也不仅仅是关于假日和文化的一角,更重要的是人们之间的交互作用。人们来到这里可以参观孩子们的操场、图书馆、杂货店、夜酒吧、小吃店或者与朋友闲逛等。该设计将会见证市民生活的活力,成为展示生活的舞台。桥上蜿蜒的地面形成了波纹般的褶皱,人们可以坐在上面看着过往的行人。设计师以这种空间激发了不同的行为模式——看与被看。双层桥面不同的特质反映了更广泛的诉求,上层的绿色空间在喧嚣的城市中创造出了一片净土。种满青草和灌木的土地向周围散发着清新的味道,并且为下层桥面提供了大片阴凉。咖啡厅、购物区和展览空间都在这层中,使该建筑的活动更为丰富多彩。下面那层也将会成为一个热闹非凡的地方,到处是街头表演、摊贩、咖啡店等,所有现代都市的街头元素在这里都能见到。












