
日本建筑公司株式会社 bandesign 的建筑师伴尚宪设计了一座拥有沿街秘密花园的住宅。该项目地处日本爱知县小牧市的一个繁华居住社区内,住宅沿河而建,500平方米的长方形用地被一分为二,居住部分位于地块的西侧。
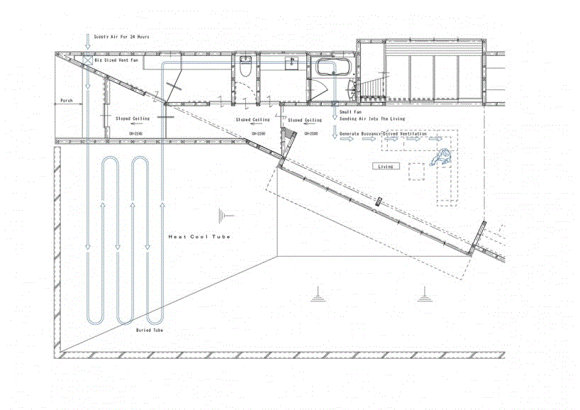
设计师安置了一堵2.5米高的水泥墙将地块包围起来,保护墙内的私人下沉式花园免受外界干扰。从屋内向外能看到令人愉悦的绿色景观。此外,斜坡还有另一个功能,斜坡内埋设了30米长的地热管,该系统被用来调节和稳定家中的微气候。







气温调节系统示意图