项目信息:建筑师: paolo venturella
设计团队: VIA ingegneria, interpro srl, angelo balducci, manuel tonati
渲染: wemage
位置:米兰,意大利 milan, italy
客户: EXPO 2015
年份: 2015

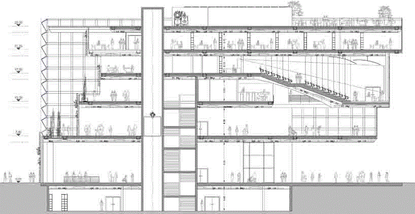
paolo venturella在米兰为2015年世博会设计的“意大利馆”方案,基于结合可持续食物和可再生能源进行设计。 展馆外墙覆盖了一面绿色墙体,食物因素在此融入;自然能源(太阳能、水和地热)集成在外立面中。
西面外观 建筑方案构想植物平滑地从外向内过渡,创造出温室环境,为人们提供食物,使之成为建筑在每个角度的最大特点。基于场地的太阳照射条件,项目在场地南侧设立了大型温室;朝湖的北侧设置了展览活动空间。场馆涵盖展品区以及果蔬种植区

室内梯田

温室和阳台空间的安排

光伏、水和地热的分布