相关文章
美国Tinkham Veale大学中心
来源:中国建筑绿化网  时间:2016-3-30


建筑设计:Perkins+Will

建造地点:美国,克里夫兰
建成时间:2015年
建筑类型:文体建筑
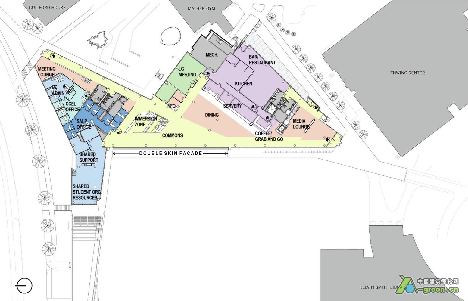
    该项目位于凯斯西储大学三个独立分区的中央,包括学生聚集空间、餐饮设施、会议室及学生组织办公室等。新建筑设有三座翼楼,以促进三个分区学生之间的交流,并成为整个校园的连接点。场地位于一块很大的开放场地旁边,场地下面是一个两层高的地下停车场。在停车场正上方建造建筑是禁止的,因为会造成过大的荷载。这个大学中心被设计成自场地生长出来的折线绿化屋顶板,并在底层设置通透的玻璃幕墙,以打开户外的视野。靠近停车结构的两侧悬挑在停车场上方,以此来获得最大的建筑面积。在三座翼楼交集之处设有双层净空高度的聚集空间,连接该设施的两个楼层。两层高的双层玻璃幕墙围合起聚集空间,并打开了西面与空地及美术馆的视线联系,同时有助消除多余的热量。
 



分享条